Papildināts 10.04.2026. Pieteikšanās ir noslēgusies.
Līdz 10.04.2026. plkst.12.00, Valmieras novada pašvaldībā saņemti divi nomas interesentu iesniegumi, atbilstoši iepriekš publicētajai informācijai, Pašvaldība organizēs nomas tiesību izsoli par nomas tiesību iegūšanu telpai Nr.91,;92; 93 , platība 29m2 (kabinets Nr.313). Informācija par nomas tiesību izsoli tiks publicēta Pašvaldības oficiālā tīmekļvietnē https://www.valmierasnovads.lv/pasvaldiba/informacija/izsoles/
Valmieras novada pašvaldība (turpmāk – Pašvaldība), tai piederošā nekustamā īpašumā Bastiona ielā 24, Valmierā, Valmieras novadā, kadastra Nr.9601 001 2001, ēkā ar kadastra apzīmējumu 9601 001 2001 001, piedāvā nomāt nedzīvojamas telpas ārstniecības pakalpojumu sniegšanai.
Ēkas galvenais lietošanas veids – 1264 ārstniecības vai veselības aprūpes iestāžu ēkas.
Nedzīvojamo telpu nomas maksa, atbilstoši apstiprinātam Pašvaldības nedzīvojamo telpu nomas maksas pakalpojumu cenrādim, ir noteikta 6,09 euro/m2 mēnesī plus pievienotās vērtības nodoklis.
Papildus nomas maksai, nomnieks maksā:
- zemes nomas maksu 28,00 EUR +PVN gadā;
- komunālos maksājumus (elektrība, siltumenerģija, aukstais ūdens un kanalizācija) atbilstoši katru mēnesi faktiski patērētam apjomam;
- nekustamā īpašuma nodokli.
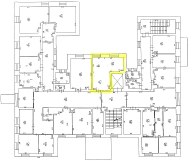
Iznomājamā telpa:
| Telpas atrašanās ēkā | Telpas Nr. pēc ēkas inventarizācijas plāna | Kabineta Nr. | Telpas platība |
| 3.stāvs | Nr.91; 92; 93 (kopā veido vienu telpu) | 313. | 29,00 m2 |
Ēkas 3.stāva telpu plāns

Nomas tiesību interesenti līdz 2026.gada 10.aprīlim plkst.12.00, Pašvaldībā, iesniedz rakstisku brīvas formas iesniegumu, norādot nomas objektu un kādai darbībai vēlas nomāt telpas.
Ja uz norādīto telpu, norādītajā termiņā iesniegumu iesniedz vairāki nomas tiesību interesenti, tad Pašvaldība par šīs telpas nomas tiesību iegūšanu organizēs nomas tiesību izsoli, par to informējot iesniegumu iesniedzējus.
