Valmieras novada pašvaldība (turpmāk – Pašvaldība), tai piederošā nekustamā īpašumā Bastiona ielā 24, Valmierā, Valmieras novadā, kadastra Nr.9601 001 2001, ēkā ar kadastra apzīmējumu 9601 001 2001 001, piedāvā nomāt divas atsevišķas nedzīvojamas telpas ārstniecības pakalpojumu sniegšanai.
Ēkas galvenais lietošanas veids – 1264 ārstniecības vai veselības aprūpes iestāžu ēkas.
Nedzīvojamo telpu nomas maksa, atbilstoši apstiprinātam Pašvaldības nedzīvojamo telpu nomas maksas pakalpojumu cenrādim, ir noteikta 6,09 euro/m2 mēnesī plus pievienotās vērtības nodoklis.
Papildus nomas maksai, nomnieks maksā:
- zemes nomas maksu 1,5% apmērā no zemes kadastrālās vērtības gadā;
- komunālos maksājumus (elektrība, siltumenerģija, aukstais ūdens un kanalizācija) atbilstoši katru mēnesi faktiski patērētam apjomam;
- nekustamā īpašuma nodokli.
1. Iznomājamā telpa Nr.1:
| Telpas atrašanās ēkā | Telpas Nr. pēc ēkas inventarizācijas plāna | Telpas platība |
| 1.stāvs | Nr.33 | 27,40 m2 |
Ēkas 1.stāva telpu plāns

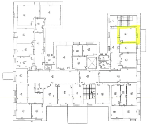
2. Iznomājamā telpa Nr.2:
| Telpas atrašanās ēkā | Telpas Nr. pēc ēkas inventarizācijas plāna | Telpas platība |
| 3.stāvs | Nr.98 | 15,7 m2 |
Ēkas 3.stāva telpu plāns

Nomas tiesību interesenti līdz 2023.gada 5.jūlijam Pašvaldībā, iesniedz rakstisku brīvas formas pieteikumu, norādot kuru no telpām un kādai darbībai vēlas nomāt.
Ja uz vienu un to pašu telpu, norādītajā termiņā pieteikumu iesniedz vairāki nomas tiesību interesenti, tad Pašvaldība par šīs telpas nomas tiesību iegūšanu organizēs nomas tiesību izsoli.
Pieteikumi iesniedzami:
- klātienē Pašvaldībā, Lāčplēša ielā 2, Valmierā, Valmieras novadā;
- nosūtot pa pastu Valmieras novada pašvaldībai Lāčplēša ielā 2, Valmierā, Valmieras novadā, LV-4201;
- elektroniski, nosūtot uz e-pastu: , parakstītu ar drošu elektronisko parakstu, kas satur laika zīmogu.
Kontaktpersona par nedzīvojamo telpu nomu Pašvaldības Īpašuma un infrastruktūras apsaimniekošanas nodaļas vecākā nekustamā īpašuma speciāliste telpu nomas jautājumos Evija Stračinska, tālrunis 64228430; 25618630, e-pasts:
